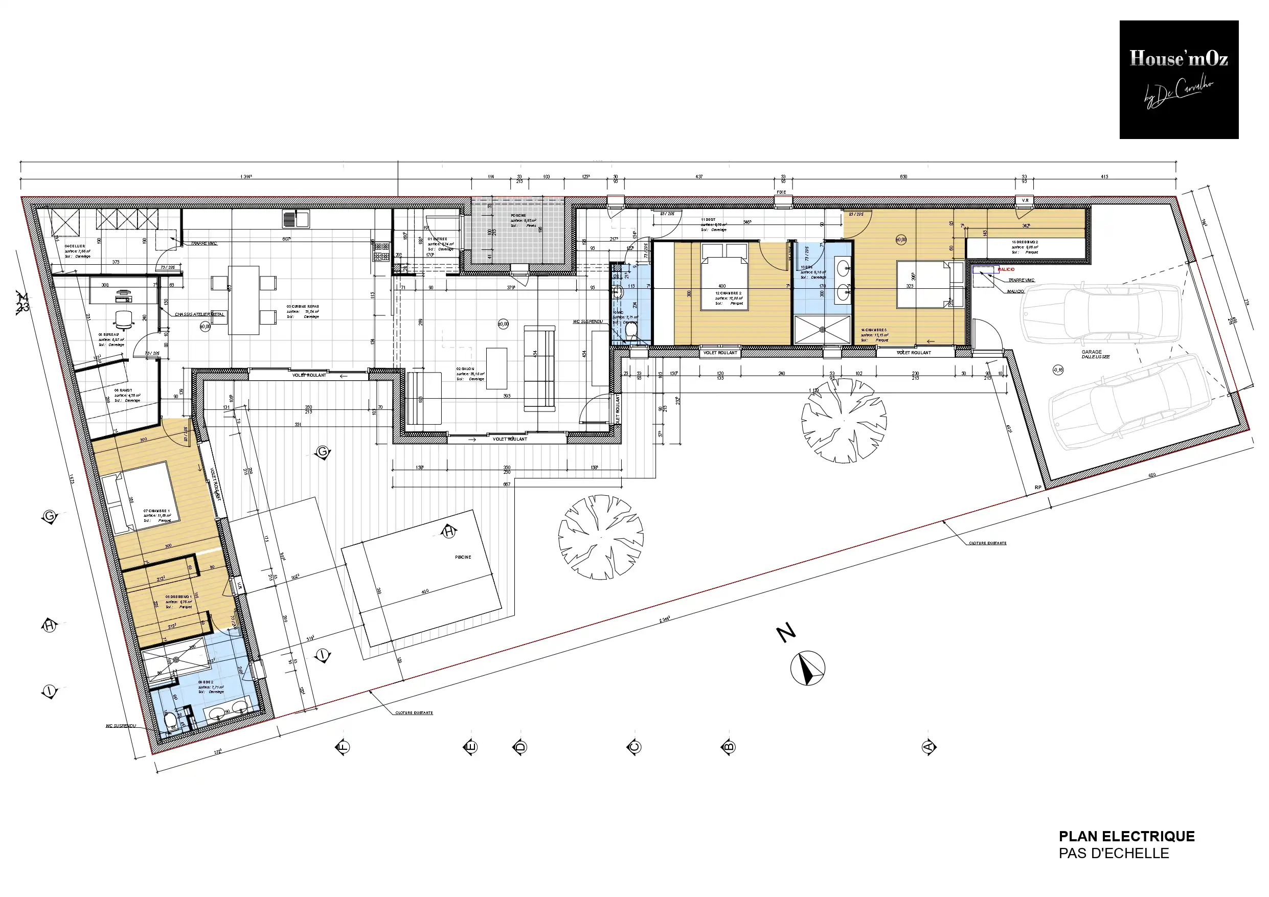
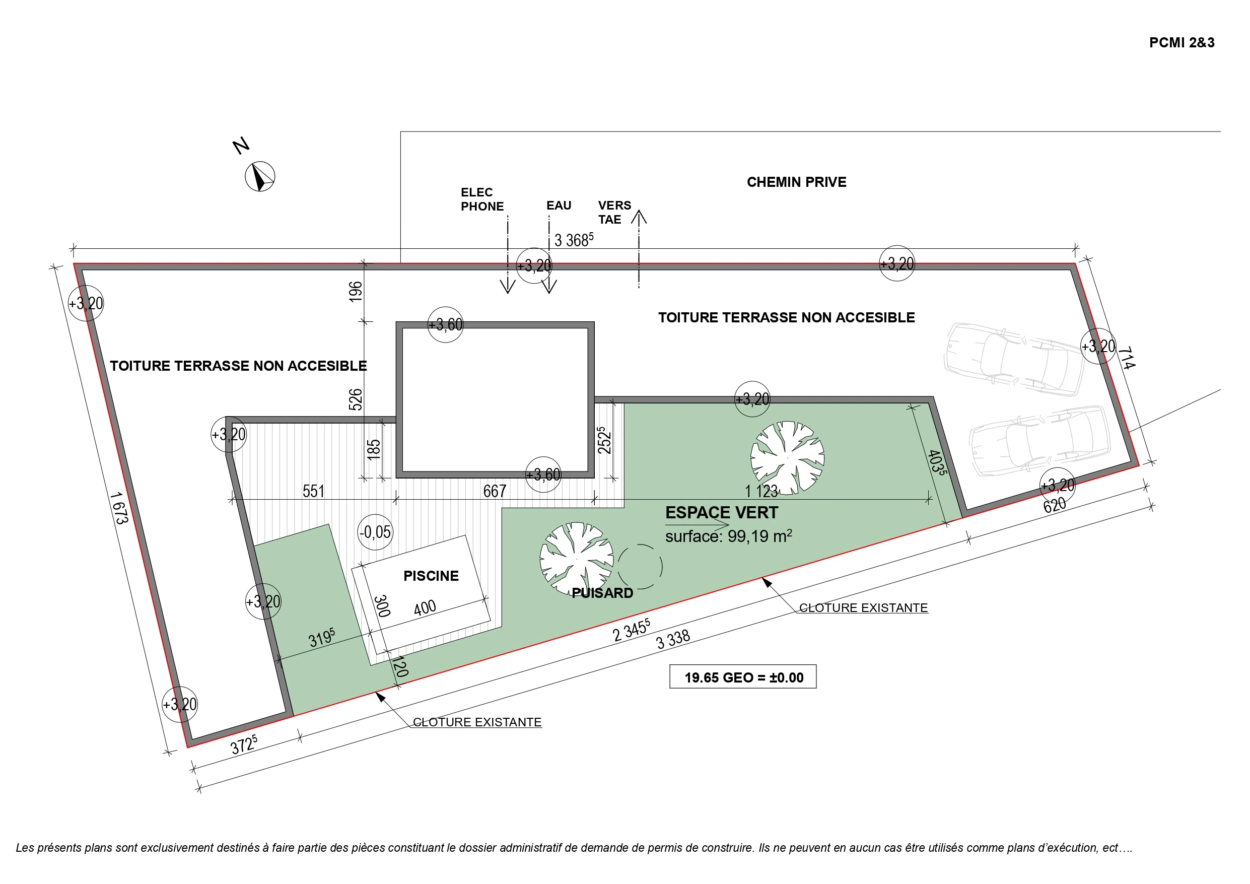
Cette construction neuve à Dompierre propose une architecture élégante articulée autour d’un patio central avec piscine. Le jeu de volumes, associant façades blanches et bloc gris contrasté, offre une écriture moderne et parfaitement intégrée au terrain. Les grandes baies vitrées structurent les espaces de vie et créent une continuité naturelle vers la terrasse carrelée et le jardin. À l’intérieur, la pièce principale s’organise autour d’une cuisine conviviale et d’un espace repas lumineux, tandis que les circulations ont été pensées pour privilégier l’intimité des chambres. L’ensemble compose une maison fonctionnelle, chaleureuse et contemporaine, entièrement tournée vers l’extérieur et le confort quotidien.