
Rénovation complète d’un bâtiment à La Rochelle
Cette réalisation met en scène la transformation profonde d’un bâtiment existant afin de lui offrir une nouvelle identité architecturale. Le projet semble avoir consisté à
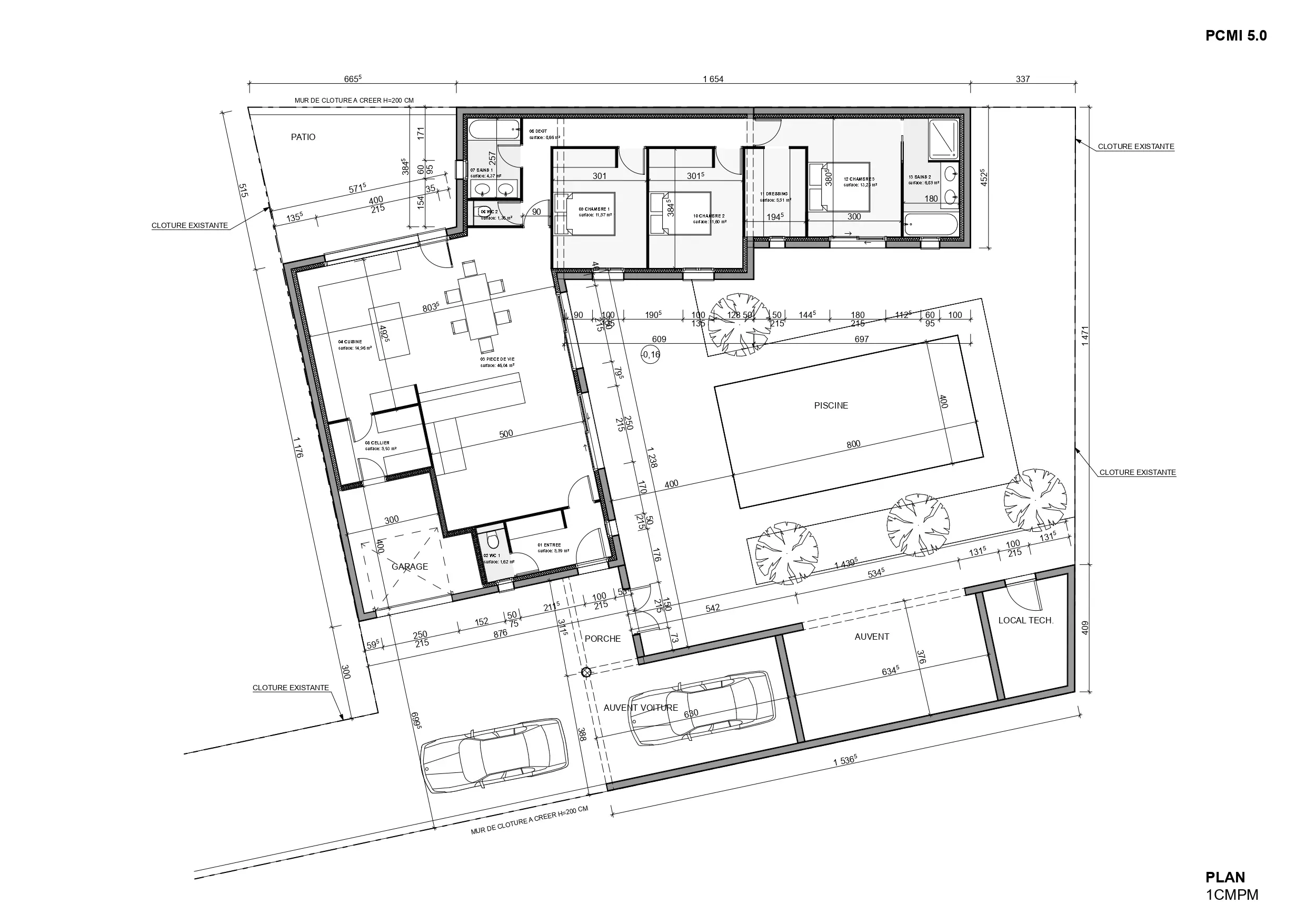
Cette construction d’une maison à Bourgneuf incarne une approche contemporaine du confort, conçue pour offrir des espaces lumineux et fonctionnels. La pièce de vie centrale, largement ouverte sur l’extérieur grâce aux baies vitrées, crée une véritable continuité entre le séjour, la terrasse et l’espace piscine, renforçant la sensation d’espace et de liberté. À l’intérieur, les matériaux sobres, les teintes naturelles et les rangements intégrés soulignent une ambiance moderne et chaleureuse, pensée pour le quotidien. À l’extérieur, l’organisation des volumes et les aménagements paysagers structurent l’ensemble et confèrent au projet une identité élégante et durable.

Cette réalisation met en scène la transformation profonde d’un bâtiment existant afin de lui offrir une nouvelle identité architecturale. Le projet semble avoir consisté à

Avant Après Cette construction neuve à Dompierre propose une architecture élégante articulée autour d’un patio central avec piscine. Le jeu de volumes, associant façades blanches

Une maison familiale au style traditionnel et contemporain Cette construction de maison dans un lotissement en Charente-Maritime (17) se distingue par son équilibre entre simplicité